开云网页版

 CG-DSG-T04
※The sweet tip:The Form Filling Counter CG-DSG-T04 picture color of our merchandise has already near to real object to the best of our abilities,but with the dissimilarity of the ray,display when taking photoes,The Form Filling Counter CG-DSG-T04 will exist a certain color difference .please understand.

Form Filling Counter | Bank Furniture

Model: CG-DSG-T04
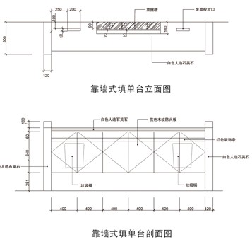
Size:

Form Filling CounterCG-DSG-T04 Description:


Form Filling CounterCG-DSG-T04 Multi angle display:



More Industrial and Commercial Bank Furniture Products:

Form Filling Counter
Form Filling Counter
Bank Furniture
Bank Furniture
Bank Furniture
Bank Furniture

You can also find the product

HOME » Financial Fourt Furniture » 银行营业厅 >>